Wohnen, Büro oder Ferienvermietung – Sie entscheiden!

















Objektart
Wohnung
Objekttyp
Erdgeschoss
Vermarktungsart
Kauf
PLZ
66450
Ort
Bexbach
ImmoNr
25-216_4
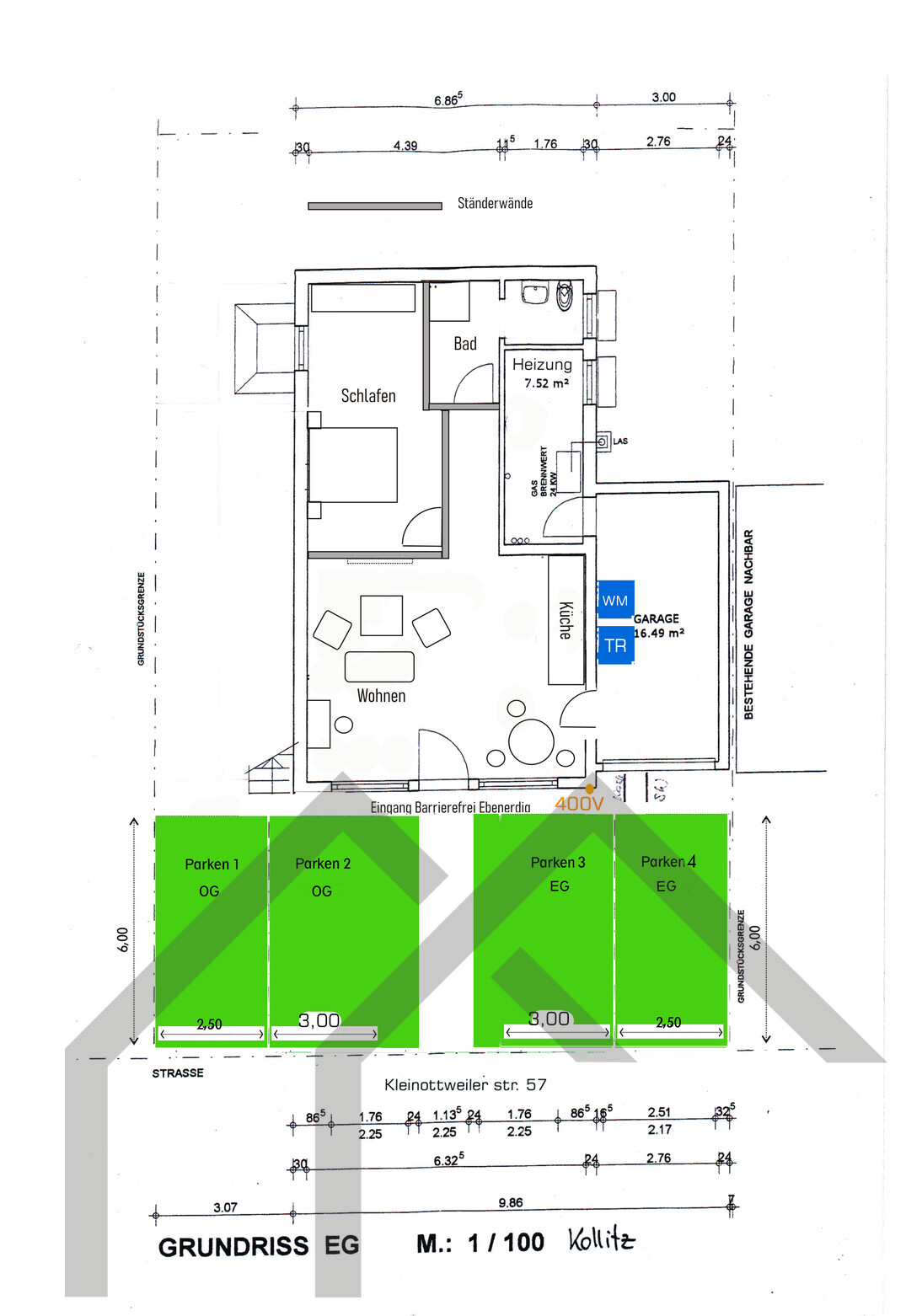
Wohnfläche
ca. 60 m²
Grundstücksgröße
ca. 271 m²
Nutzfläche
ca. 60 m²
Anzahl Zimmer
4
Anzahl Badezimmer
2
Kaufpreis
150.000,00 €
Außen-Provision
Käuferprovision beträgt 3,57% (inkl. MwSt.) des beurkundeten Kaufpreises.
Beschreibung
Ideal zur Kurzzeitvermietung - ob Monteure oder Feriengäste - die perfekte Gelegenheit für Investoren oder Kapitalanleger.Alternativ: ideal als die erste eigene Wohnung!
Die Wohnung ist sehr gepflegt und aktuell voll möbliert (nach Absprache kann die Einrichtung übernommen werden).
Ein separater Eingang, eine autarke Versorgungsstruktur sowie zwei eigene Stellplätze sorgen für maximale Unabhängigkeit und gestalten Ankunft und Aufenthalt besonders komfortabel.
Der Wohn-Essbereich bildet das Herz der Wohnung mit viel Licht für eine angenehme Atmosphäre. Die voll ausgestattete Küche ist modern und trotzdem funktional. zu dem verfügt die Wohnung über ein stilvolles Tageslichtbad mit Dusche und ein geräumiges Schlafzimmer.
Die zentrale und gleichzeitig ruhige Lage verbindet angenehmes Wohnen mit kurzen Wegen. Einkaufsmöglichkeiten, öffentliche Verkehrsmittel und Cafés sind fußläufig in nur wenigen Minuten zu erreichen.
Ob zur Selbstnutzung oder als Kapitalanlage- dieses Objekt bietet vielfältige Perspektiven.
Überzeugen Sie sich selbst und vereinbaren Sie gern einen Besichtigungstermin!
Lage
Das Objekt befindet sich zentral in Bexbach. Die Lage überzeugt vor allem durch ihre fußläufige Nähe zu sämtlichen Einrichtungen des täglichen Bedarfs: Supermärkte, Bäckereien, Apotheken, Ärzte, Banken sowie Cafés und kleinere Geschäfte erreichen Sie bequem in wenigen Minuten zu Fuß.Hier sind einige herausragende Besonderheiten von Bexbach:
Bergbaugeschichte: Bexbach hat eine reiche Bergbaugeschichte, die die Stadt geprägt hat. Der Bergbau spielte eine bedeutende Rolle in der wirtschaftlichen Entwicklung der Region, und es gibt immer noch Spuren dieser Vergangenheit, die in Museen und Denkmälern erhalten sind.
Blumengarten: Der Blumengarten von Bexbach ist eine grüne Oase in der Stadt, die mit einer Vielzahl von Blumen, Pflanzen und Skulpturen gestaltet ist. Der Garten ist nicht nur ein Ort der Erholung, sondern auch ein visuelles Fest für Naturliebhaber.
Kulturangebot: Bexbach bietet ein vielfältiges kulturelles Angebot, darunter lokale Museen, kulturelle Veranstaltungen und traditionelle Feste. Dies spiegelt sich in der lebendigen Gemeinschaft wider und bietet Einheimischen sowie Besuchern eine breite Palette an Unterhaltungsmöglichkeiten.
Naturerlebnis: Die Umgebung von Bexbach ist von grünen Wäldern und Naturgebieten geprägt. Dies schafft Möglichkeiten für Outdoor-Aktivitäten wie Wandern und Radfahren und bietet eine natürliche Umgebung zum Erholen und Entspannen.
Einkaufs- und Freizeitmöglichkeiten: Die Stadt verfügt über eine breite Palette von Einkaufsmöglichkeiten, von kleinen lokalen Händlern bis zu größeren Einkaufszentren. Die lebendige Innenstadt bietet außerdem gemütliche Cafés und Restaurants. Freizeitmöglichkeiten reichen von Sporteinrichtungen bis zu kulturellen Veranstaltungen.
Energieausweis
Energieausweis gültig bis
10.08.2035
Energieeffizienzklasse
E
Ausstattung
EG - Ferienwohnung mit ca. 60qm Wohnflächeggf. auch als Gewerbeeinheit nutzbar
- Badezimmer mit Dusche im modernen Design
- Garage sowie 2 Außenstellplätze
- Küche sowie Ausstattung können nach Absprache übernommen werden.
Sonstige Angaben
GELDWÄSCHE: Als Immobilienmaklerunternehmen ist SaarPfalz Immobilien nach § 2 Abs. 1 Nr. 14 und § 11 Abs. 1, 2 Geldwäschegesetz (GwG) dazu verpflichtet, bei der Begründung einer Geschäftsbeziehung die Identität des Vertragspartners festzustellen und zu überprüfen, bzw. sobald ein ernsthaftes Interesse an der Durchführung des Immobilienkaufvertrages besteht. Hierzu ist es erforderlich, dass wir nach § 11 Abs. 4 GwG die relevanten Daten Ihres Personalausweises festhalten (wenn Sie als natürliche Person handeln) – beispielsweise mittels einer Kopie. Bei einer juristischen Person benötigen wir eine Kopie des Handelsregisterauszugs, aus welchem der wirtschaftlich Berechtigte hervorgeht. Das Geldwäschegesetz sieht vor, dass der Makler die Kopien bzw. Unterlagen fünf Jahre aufbewahren muss. Als unser Vertragspartner haben Sie auch eine Mitwirkungspflicht nach § 11 Abs. 6 GwG.HAFTUNG: Wir weisen darauf hin, dass die von uns weitergegebenen Objektinformationen, Unterlagen, Pläne etc. vom Verkäufer bzw. Vermieter stammen. Eine Haftung für die Richtigkeit oder Vollständigkeit der Angaben übernehmen wir daher nicht. Es obliegt daher unseren Kunden, die darin enthaltenen Objektinformationen und Angaben auf ihre Richtigkeit hin zu überprüfen. Alle Immobilienangebote sind freibleibend und vorbehaltlich Irrtümer, Zwischenverkauf- und Vermietung oder sonstiger Zwischenverwertung.
Gesamtkosten
Übersicht der Kosten
Kaufpreis
150.000 €
Grunderwerbsteuer
9.750 €
Maklerprovision
5.355 €
Notargebühren
2.250 €
Grundbucheintrag
750 €
Gesamtkosten
168.105 €
Für die Berechnung der Notar- und Grundbuchkosten wird in der Regel ein Standardwert von 1,5 % und 0,5 % verwendet.
